top of page
A compilation of construction drawings produced across multiple projects, showcasing bedroom and living spaces, kitchens, bathrooms and sectional details.

Bedroom Layouts
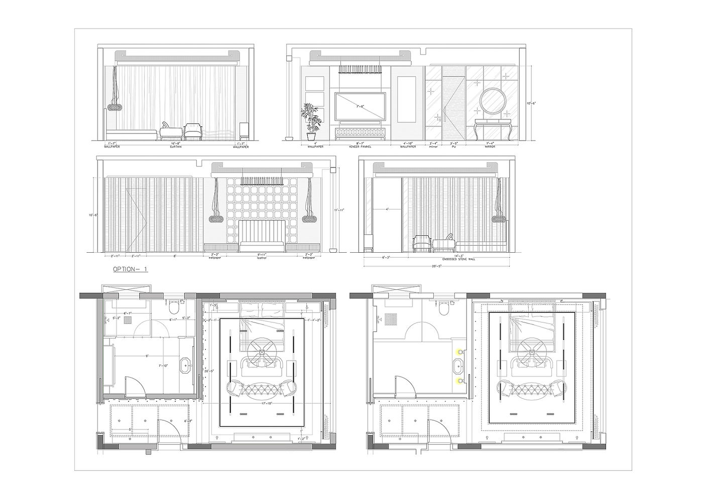
Master Bedroom Layout and Sections

Primary Bedroom Layout and Sections
Master Bedroom Wardrobe Layout and Sections

Daughter's Bedroom Wardrobe Layout and Sections

Guest Bedroom Wardrobe Layout and Sections



Master Bedroom Rendered Sections


bottom of page

